HOME 会社概要 営業案内 リクルート メール skip to top
土地
 

 

物件詳細

 
 

 
一戸建て
マンション
賃貸
ビジネス不動産
 
中古戸建て
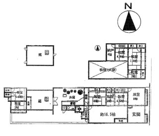
伏見区両替町の家
 販売価格 5,580万円
伏見区両替町13丁目
■京阪本線「丹波橋」駅徒歩6分
土地面積 239.66m2
(72.4坪)
私道面積  
道路 公道 東側5.50m
建物面積 120.98m2
(36.59坪)
1F 105.78m2
2F 15.20m2
築年月  

・36.5坪・増築未登記部分有り
・木造2階建て
  修学院西沮沢町 1580万円

修学院西沮沢町 1580万円
 
 

戻る

 

2008.2.1
ホームページをリニューアルしました。
2008.1.15
伏見桃山に186.66平米(56.46坪)の宅地
2008.1.10
テストページ作成

お問い合わせ